Skip links
Ured ovlaštene arhitektice : : Leona Kordiš, mag.ing.arch.

U sjeni pergole

Kuća u Pridragi projektirana je kao suvremena interpretacija mediteranskog stanovanja, u dijalogu s krajolikom i terenom u padu. Smještena na parceli okruženoj cestama s tri strane, kuća se zatvara prema prometu, a otvara prema unutarnjem vrtu i zaštićenim vanjskim prostorima, stvarajući miran i intiman ambijent unutar jasno definiranog oboda.

Osnovni volumen kuće jednostavan je i smiren, s dvostrešnim krovom kao referencom na lokalnu graditeljsku tradiciju. Ta se osnovna forma nadograđuje suvremenim elementima: pergolama, vanjskim stubištima i terasama koje prate pad terena i omogućuju višeslojno korištenje vanjskog prostora. Natkrivena terasa i pergola nisu dodatak kući, već njezin sastavni dio – produžetak dnevnog boravka i prijelaz između interijera i krajolika.

Pergola uvlači vrt u sebe, dok se terasa postupno dematerijalizira, lomi po visini i stapa s vanjskim stubištem koje vodi na krovnu terasu, s pogledom prema moru.

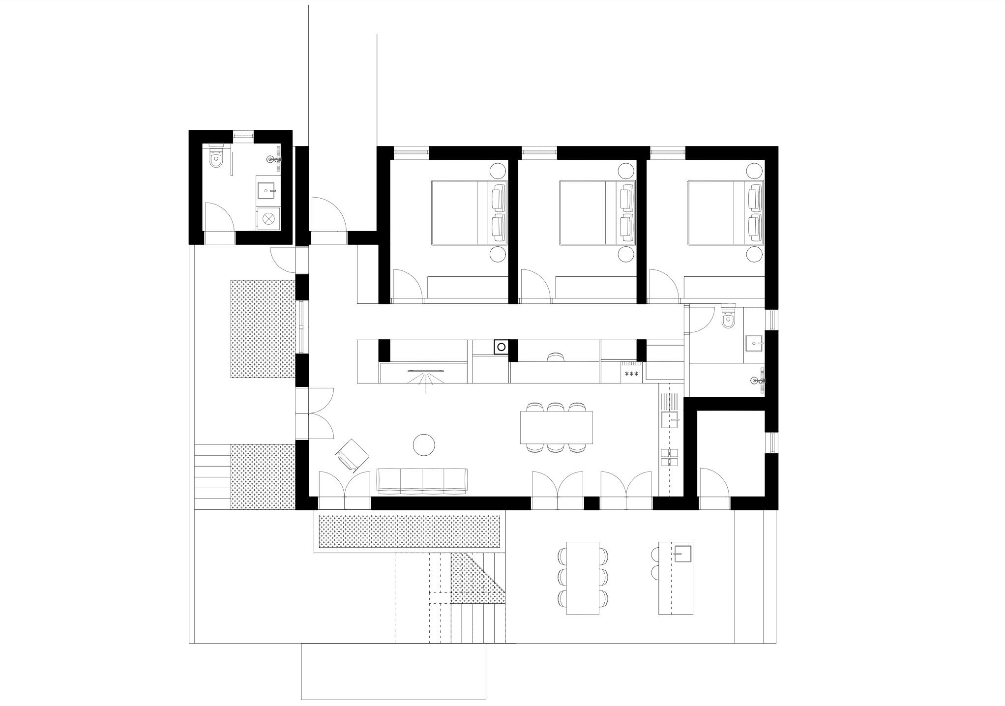
Unutarnja organizacija prostora temelji se na jasnoj podjeli između privatne i dnevne zone, ali bez klasičnih, krutih granica. Između hodnika spavaćih soba i dnevnog prostora ne nalazi se običan zid, već multifunkcionalna pregrada koja istovremeno služi kao prostor ugradbenih ormara, ugrađenog kamina i integriranog radnog kutka. Ova pregrada postaje aktivni element kuće – prostorni filter koji povezuje funkcije, a ne samo da ih razdvaja. Kroz nju se svjetlo iz blagovaonice filtrira prema hodniku, čime se unutarnji prostori vizualno i ambijentalno povezuju.

Materijali su birani s ciljem trajnosti, neutralnosti i uklapanja u okoliš: svijetla žbukana fasada, kameni potporni zidovi i tamna metalna pergola stvaraju uravnotežen kontrast između težine i lakoće, tradicije i suvremenosti. Zelenilo je integrirano u arhitekturu kroz podignute gredice, penjačice i mediteransko bilje, čime kuća tijekom vremena dodatno „sraste“ s terenom.

Kuća u Pridragi nije zamišljena kao objekt koji dominira prostorom, već kao arhitektura koja se smireno prilagođava kontekstu, omogućujući kvalitetan i dugoročan način stanovanja u mediteranskom krajoliku.

Koji su biofilni elementi ovog projekta?

: : Filtrirano prirodno svjetlo
: : Kontinuirani prijelaz između interijera i eksterijera
: : Integracija vegetacije u arhitekturu
: : Kontakt s prirodnim materijalima
: : Vizualna povezanost s krajolikom
: : Topografija kao aktivni element prostora
: : Prostorni filteri umjesto čvrstih barijera
: : Mikroklima i prirodna regulacija
: : Ritam i promjena tijekom dana i godišnjih doba
: : Osjećaj zaklona i sigurnosti uz otvorenost prema prirodi

Kuca u Pridragi