Skip links
Ured ovlaštene arhitektice : : Leona Kordiš, mag.ing.arch.

Uz padinu i more

Projekt manje višestambene zgrade u Ražancu

Izazov je bio teren u velikom nagibu koji je morao udomiti tri stambene jedinice sa zasebnim ulazima, parkirna mjesta i prostor za vanjski boravak sa swimspa jacuzzi-jem.

U nagibu od gotovo 20%, građevina se ne opire konfiguraciji nego je prihvaća: njezini ulazi i terase spuštaju se kaskadno, prateći padinu i otvarajući se prema jugozapadu — prema suncu i pogledu.

Zgrada sadrži tri stambene jedinice, od kojih svaka ima vlastiti vanjski ulaz. Prizemni stanovi su zrcalno simetrični: ulazi se preko malih terasa s pogledom na masline, nastavlja u kompaktnu dnevnu zonu, a iz nje izlazi na veću terasu s integriranim jacuzzijem i zonom za druženje. Zidna ograda na međi je oblikovana da istovremeno štiti intimu i usmjerava pogled prema moru.

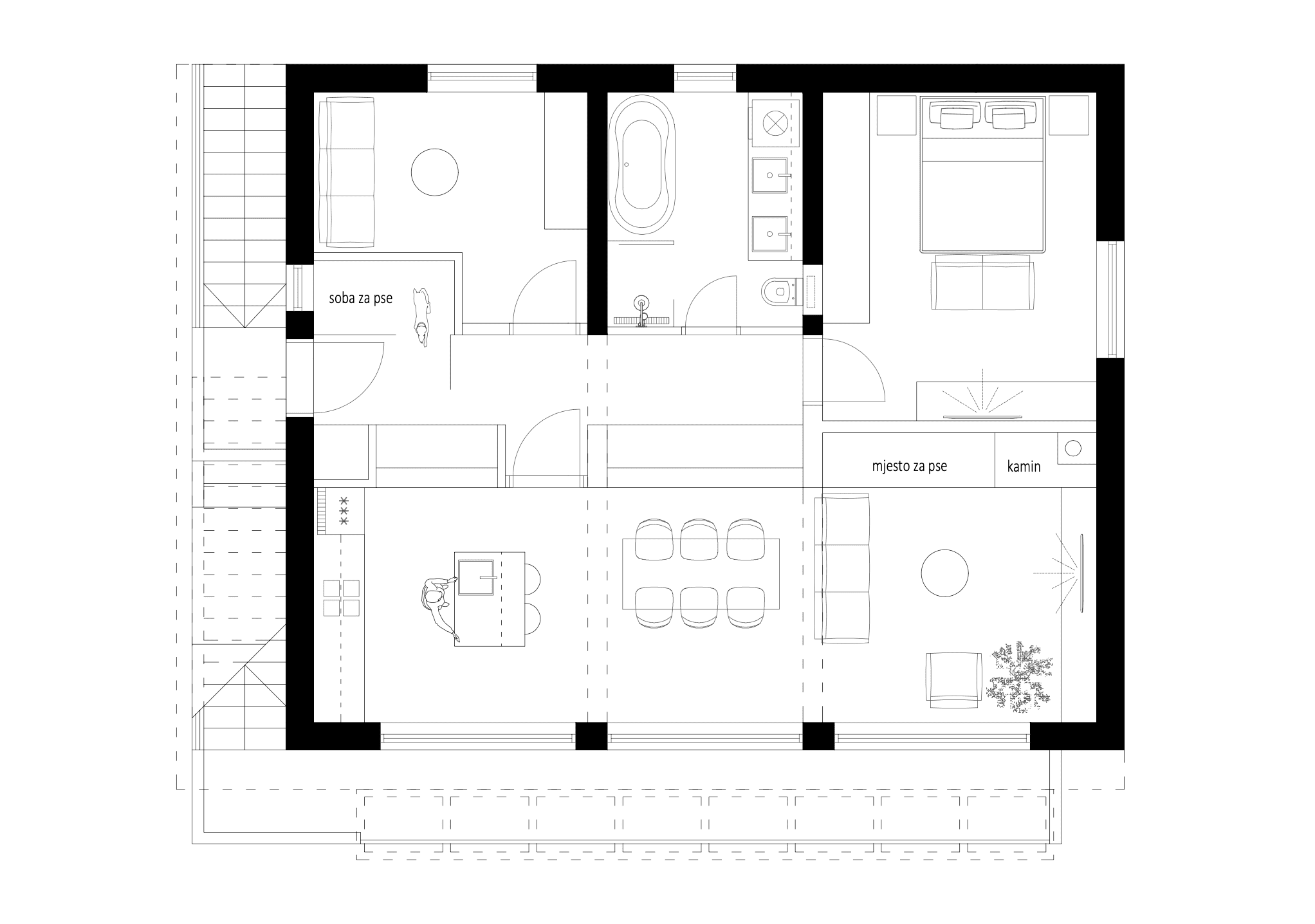
Stan na katu projektiran je prema osnovnim feng shui načelima: prostor se otvara prema jugu i moru, ulazna zona je zaštićena garderobnim blokom, a boravak je pozicioniran kao središte doma — prozračan i jasan. Klupa i biljka kod ulaza usmjeravaju energiju, dok se elementi drva, kamena, vatre i vode uravnotežuju kroz materijale, orijentaciju i svjetlo. Kupaonica je uvučena, praonica skrivena, a spavaća soba smirena i stabilna – uz jedan svjesni kompromis koji ne narušava ukupnu ravnotežu.

Posebna pažnja posvećena je i dvama psećim sustanarima: za njih je u stanu osmišljena zasebna soba, kao i vanjski prostori za boravak, odmor i nadzor.

Zgrada je projektirana s naglaskom na jednostavnu izvedbu i dugoročno održivo korištenje. Nosivi sustav čine montažni drvobetonski elementi IsoSpan s integriranom toplinskom izolacijom. Ugradbeni jacuzzi, smješten u razini terase, zamjenjuje bazen i omogućuje korištenje tijekom cijele godine – bez potrebe za kompleksnom bazenskom tehnikom.