Skip links
Ured ovlaštene arhitektice : : Leona Kordiš, mag.ing.arch.

VILA PENDEZA

Idejni projekt za luksuznu obiteljsku vilu s bazenom.

Projektni zadatak:

Oblikovanje koje će biti moderno ali i odskakati od ostatka kuća u susjedstvu.
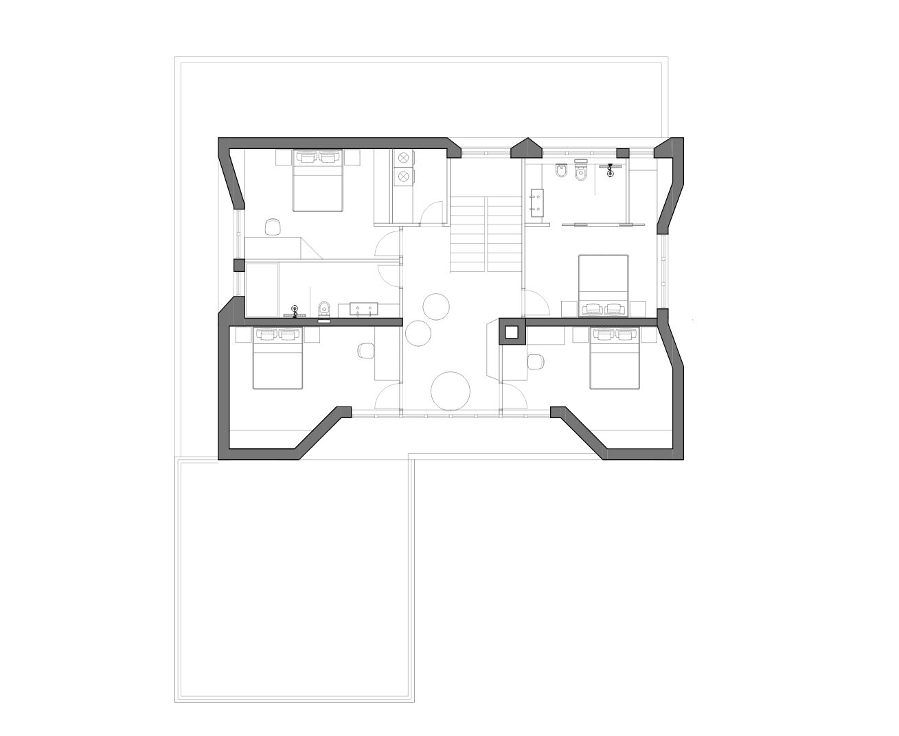
Garaža, open space dnevni prostor s kuhinjom i konoba u prizemlju, a na katu jedna master spavaća sobe i tri spavaće sobe sa zajedničkom kupaonicom.

Misija ostvarena:

Osmišljena je vila koje nema samo dekor na fasadi, već se njen identitet čita i u tlocrtu.
Staklene stijene i prozori su uvučeni u interijer poput lijevka.
Time se kadrira pogled i stvaraju niše boravka u venjskom prostoru.
Interijer i eksterijer gube granicu otvaranjem staklene stijene, jer drvena obloga kosina pojačava dojam interijera.
Spavaći trakt na prvom katu dobio je prostor za druženje kao pretprostor
soba : : privatni dnevni boravak koji neodvojivo komunicira s lođom i stubištem.

Vila Pendeza tlocrt
Villa Pendeza